Ohromující obytný prostor, pozemek s velkým potenciálem, tenisový kurt s kvalitním zázemím, výborná dostupnost z Prahy. To vše a mnoho dalšího Vám nabídne tato výjimečná nemovitost, která na současném trhu nemá konkurenci.
Velkorysá rodinná vila se dvěma propojenými bytovými jednotkami může být ideálním řešením pro nadstandardní rodinné či více generační bydlení.
Náročným klientům hledajícím maximální komfort bydlení nabízí současná dispozice ohromný potenciál v propojení bytů, čímž získají luxusní rezidenci s výjimečným prostorem dle vlastních představ (vizualizace v nabídce).
Díky prostorné a vzrostlé zahradě s JZ orientací si užijete maximální soukromí a pohodu, či dostatek slunce při relaxu u bazénu.
Tenisové nadšence jistě okouzlí privátní antukový kurt s dokonalým zázemím (vč. solárního ohřevu vody), případně lze využít prostor kurtu (530 m2) po úpravě k jinému účelu.
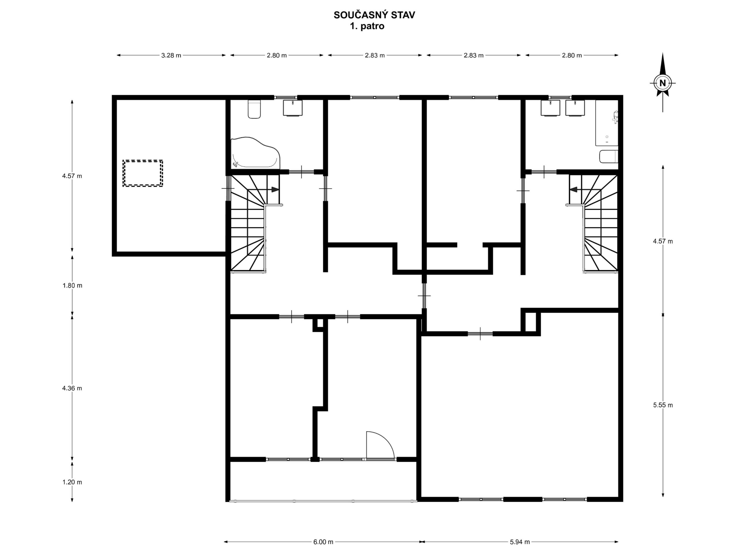
Dvoupodlažní vila z roku 1995 nabízí celkovou obytnou plochu 288 m2 pro dvě bytové jednotky o dispozici 5+1 a 3+1 s vlastními vchody a čtyřmi koupelnami na pozemku o velikosti 2082 m2.
Po rozsáhlé revitalizaci (2017) získal dům nová plastová okna, zateplenou fasádu, tepelné čerpadlo (vzduch-voda) a částečné úpravy interiéru vč. podlahového vytápění.
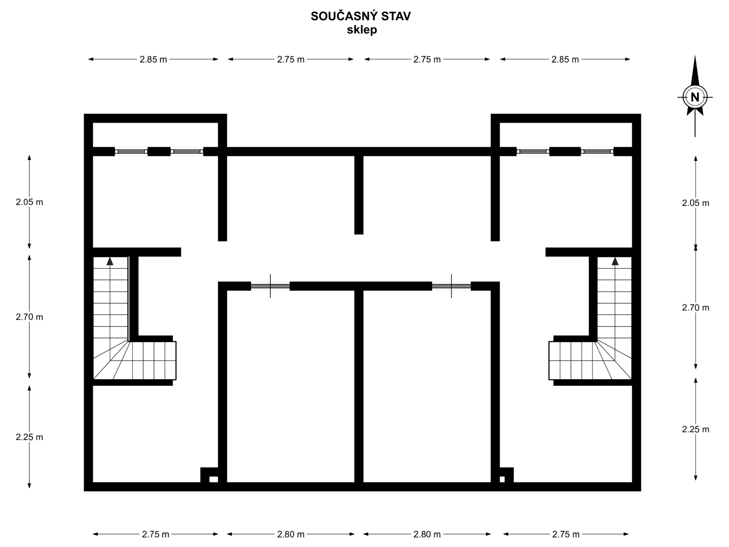
Praktičnost a komfort zvyšuje nadstandardní sklepní prostor 74 m2 a dvě garáže 38 m2.
Díky tepelnému čerpadlu a zateplení fasády oceníte velkou energetickou úsporu domu (PENB s hodnotou C – úsporná). Pro vytápění lze využít i elektrický kotel určený pro jednu bytovou jednotku.
Pro ohřev TUV slouží dva elektrické bojlery (2 x 200 l), voda je zajištěna z vlastní studny, možnost napojení na vodovodní řad z přípojky na pozemku, odpad sveden do kanalizace.
Velkým benefitem je ideální umístění v malebné obci Ptice v dosahu krásné přírody (CHKO Český kras, Brdy) a současně s rychlým dojezdem do 15 minut autem z okraje Prahy.
Najdete zde mateřskou školu, dětské hřiště, obchody, restaurace a přímý spoj autobusem na metro Zličín do 20 min. Kompletní občanská vybavenost je zajištěna do 5 km v obcích Rudná, Unhošť či v blízké Praze.
Zaujala Vás tato výjimečná nemovitost? Pak využijte virtuální prohlídky v nabídce a projděte si ji celou z pohodlí domova.
Její skutečnou atmosféru a velkorysý prostor však pocítíte až na místě, tak se neváhejte objednat na prohlídku, nebudete litovat.
V případě více zájemců bude nemovitost prodána nejvýhodnější nabídce.
Prodávající si vyhrazuje právo vybrat kupujícího na základě jím zvolených kritérií.
Se zajištěním financování Vám případně pomůže náš zkušený specialista.










